_________________________________

German International School of Boston mezzanine, MA.

 

 

 

 

Objectives:

By adding modern lighting and exposing the truss to the inside of the room, it became more attractive to students, who enjoyed its different feeling from the traditional Beaux Arts styling of the rest of the building.

 

 

_________________________________

GISB: Outdoor Classroom, Oberstuffer (High School), MA.

 

 

Objectives:

Provide handicap access to basement level
Give older kids a place of their own
Collect rainwater from roof

_________________________________

GISB Oberstuffer, basement conversion, MA.

 

 

 

Objectives:

Create a separate space within the same building for high school students
Use the outdoor classroom as a separate entrance and departure area
Enable interaction with German students from other international schools in other countries

 

 

_________________________________

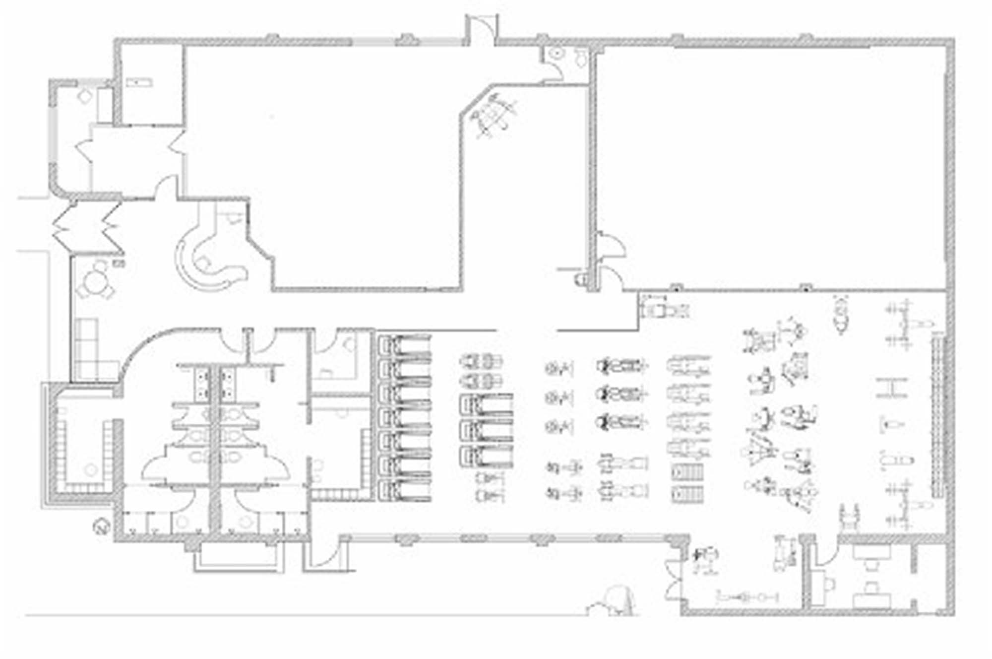
Needham Downtown YMCA Converted Bowling Alley, MA.

 

 

 

Objectives:

Create an inviting reception area
Add fitness machines
Maintain a good traffic flow

_________________________________

Shady Hill School, Cambridge MA.

 

 

Objectives:

Create a design to support an integrated curriculum
Incorporate non-rectilinear forms
Take advantage of contrasting materials

 

 

_________________________________

Residential Projects, MA.
 

 

 

Objectives:

Enhance historic elements
Mudroom and garage
Timber framing
Screened-in porch for a 1950’s ranch style house

 

_________________________________

Total House Remodel, MA.

 

 

Objectives:

Second Floor 2010

Objectives:
Redesign vintage house for a 21st century family
Add closets and cabinetry
Update all finishes

 

 

_________________________________

Attic Conversion, MA.

 

 

 

Objectives:

Provide flexibility for family, anticipating needs that will change over time
Repurpose existing components

 

_________________________________

Total House Remodel, MA.
 

 

Objectives:               First Floor 2017
Move master bedroom suite to first floor
Redesign kitchen
Update finishes

_________________________________

Nine-Unit Condominium Complex in Dorchester, MA.
 

 

Objectives:

Design luxury two bedroom apartments
Maximize floor area ratio
Blend building seamlessly within a historic neighborhood

 

 

_________________________________

Chestnut Hill Exercise Room, MA.

 

 

 

_________________________________

Home Colorado, CO.

 

 

 

_________________________________

Auto Show Competition, MA.

 

_________________________________

Single Family Home for a couple with allergies, MA.

 

 

(environmental sensitivity syndrome)
 

Objectives:
Site house in remote location, away from broadcasting towers and electric lines
Select materials from a limited palette, avoid pine tar and petroleum-based materials
Envelope to be breathable, no vapor barrier

 

 

 

.
 

Alex J. Knox, AIA
1545 North Monaco Parkway
Denver, Colorado 80220

617-3063474

ak@alexknox.com

COPYRIGHT 2025 ALEX KNOX ARCHITECTS - ALL RIGHTS RESERVED.